Full Details
Offered to the market chain free is this very well presented town house, with three well proportioned bedrooms and open plan living space.
Situated within the popular Kingsway development in Gloucester, this well-presented home at Pevensey Place offers modern living in a convenient and family-friendly setting. Located in the sought-after suburb of Quedgeley, the property benefits from excellent local amenities, reputable schools, and superb transport links, including easy access to the M5 motorway.
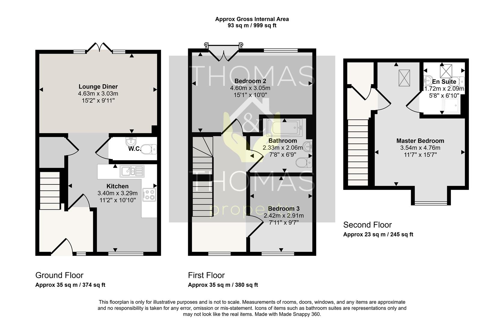
The property features a bright and spacious layout designed for comfortable everyday living. A welcoming entrance hall leads through to a generous open plan style kitchen / diner & lounge providing ample room for family meals and social gatherings. Downstairs also benefits from a cloakroom and additional storage cupboard.
On the first floor you will find a good sized double bedroom with juliet balcony, a modern family bathroom with shower over bath and a single bedroom.
On the top floor is the master suit, with dressing area space, additional built in storage and a very good size en suite with shower cubicle.
Externally, the property enjoys a private rear garden — perfect for outdoor dining or leisure — with side access leading out to the driveway & garage with parking for at least two cars.
Kingsway is known for its community feel, green open spaces, and convenient access to both Gloucester city centre and Cheltenham, making this an excellent opportunity for a wide range of buyers seeking a well-connected and contemporary home.
Disclaimer
Appliances such as radiators, heaters, boilers, fixtures or utilities (gas, water, electricity) which may have been mentioned in these details have not been tested and no guarantee can be given that they are suitable or in working order. We cannot guarantee that building regulations or planning permission has been approved and would recommend that prospective purchasers should make their own independent enquiries on these matters. All measurements are approximate.